Explore Three-Bedroom Homes in Holley, NY
Discover Your Dream Home at Tari Lane
Experience the comfort and convenience of our three-bedroom homes, perfectly suited for modern living in the picturesque town of Holley, NY.
THREE
Bedrooms
$239,000
Total year’s taxes $7,200 per year
Explore Our Three-Bedroom Homes in Holley, NY
THREE Bedroom Home ~ $239,000
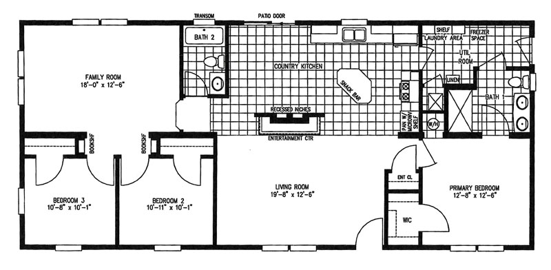
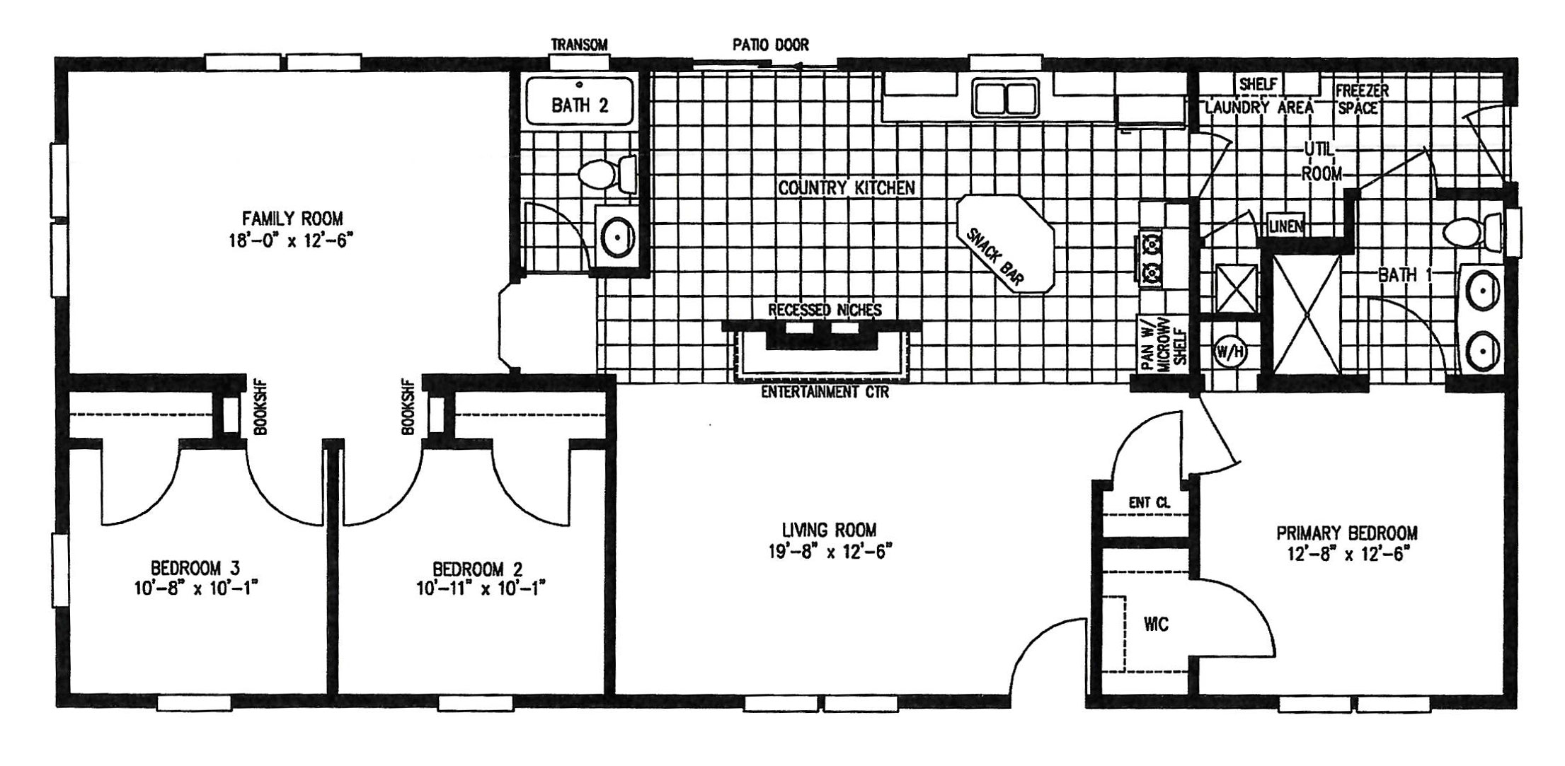
Built in 2022, these new high-end manufactured homes feature 1600 square feet of living space with breezeway and 1-1⁄2 car garage. There is no need to go out to bring the groceries into the home!
Three bedrooms and two full baths. High efficiency propane furnace and central air. A separate foyer and laundry room from the breezeway gives you plenty of workspace and storage.
The lot size is 200 × 200 has city water and is located just minutes from Strong West, Wegmans, and Walmart in Brockport.
The dine-in kitchen boasts Frigidaire stainless steel appliances, silent close cupboards and drawers, a cook’s sink, and a center island for quick meals and conversation. The family room is large with beautiful high efficiency windows. Crown molding can be found throughout the home, as well as 36″ doorways, making the home wheelchair friendly.
For qualified buyers
Owner will hold first mortgage up to $100,000 at 3% for 15 years.
OR $150,000. At 5% for 15 years.
Call Dave 585-746-8733 anytime.
Community Features
- Off Street Parking
- Street Width: 30 feet
- Street Type: Stone
- Home Driveway: Blacktop
- Age Restriction: 55+
- Vacant Sites: 2+
- Year Built: 2022
- Number of Sites: 4 at present
Pet Policies
- Pets Allowed: Yes
- No more than one cat OR one dog.
- Pet must be approved by Taryn Estates Insurance Company.
- Pets must be leashed and attended at all time when outside.
- No large or dangerous breeds
Explore Our Two and Three Bedroom Homes
A Visual Tour of Our Available Properties
Get In Touch
If you’re interested in our two or three bedroom homes at Tari Lane Homes, please contact us for more details and to schedule a viewing. Our team is ready to assist you in finding your perfect home in Holly, NY. Reach out today!
Discover Your Dream Home at Tari Lane
Explore the charm and comfort of our two-bedroom homes in Holley, NY. Perfect for new families or downsizing with style, each home offers a unique blend of modern amenities and serene living. Schedule a viewing today or request more information to see why Tari Lane Homes should be your next big move!

















